Te koop Middle Floor Apartment Costa Del Sol Alhaurin Golf € 305.000,-
Exclusively for sale, this very nice middle floor apartment in Atalaya - Alhaurín Golf - Alhaurín el Grande - with midday sun to sunset over the surrounding mountains.
A must see, this great condition, well kept apartment in Alhaurín Golf, is located in the sub-urbanisation Conjunto de Atalaya, behind private and secure community gates, the urbanisation is well known for its beautiful and well maintained gardens and pool area with golf views.
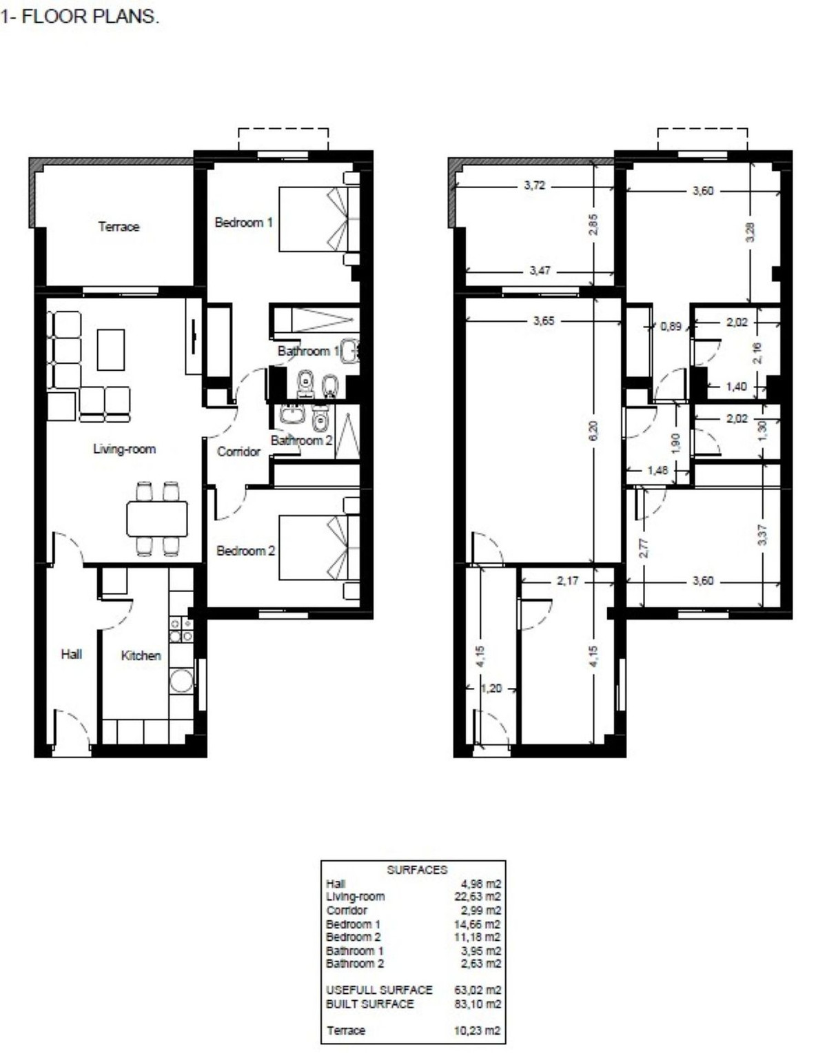
The apartment has 2 double bedrooms with fitted wardrobes, 2 full bathrooms, a nice terrace with stunning views, a fully equipped separate kitchen and a nicely decorated living / dining room.
You enter the apartment via a hallway, to your right you have the fully equipped kitchen, with a new washing machine and a new boiler. Straight on you enter into the spacious and light living / dining room. In this living room you will see the quality of the furniture as well as the views that you have from the terrace where you have sun from about 14.00h until sunset. Can you imagine the beautiful sunsets you will see here! From the living room you go into a smaller corridor and this leads to the guest bathroom and second bedroom as well as to the left the master bedroom with your own en suite bathroom, where you have the same views to the mountains, from which you look miles away.
The apartment has its own dedicated parking space, which is in the shade from about 14.00 o clock. All furniture is included in the price.
It is only 2 minutes to start your walk in the forest, 5 minutes car drive to Alhaurín el Grande and Coin. 25 minutes to the coast and Málaga airport, so centrally located. There is also a bus stop nearby, hairdressers / beauticians and a few restaurants, as well as a convenience store located at the BP station. And not to forget, the apartment is part of the prestigous golfcourse of Alhaurin el Grande, designed by Severiano Ballesteros. Clubhouse and course open to everybody, only 3 minutes walk away.
Come and book an appointment with us. We are knowledgeable of the area having our office located on Alhaurín Golf.
meer info