Te koop Residential Plot Costa Del Sol El Rosario € 468.000,-
Great opportunity for your dream home in heart of Marbella
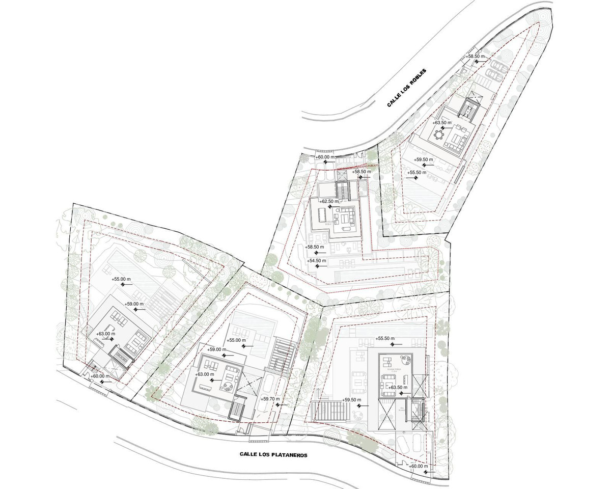
EL ROSARIO VALLEY - Unique development project from one of the biggest development companies in Cost Del Sol.
El Rosario Valley is situated in the heart of one of the most prestigious residential gated urbanizations in Marbella, with high security standards, newly built roads, surrounded by extended green areas, closely located to long beautiful Mediterranean beaches and beach clubs, restaurants shopping areas and 1-minute drive to Royal Tennis Club.
The project includes 5 individual villas developed by one of the most celebrated architects of Marbella. The villas will have spectacular views on the mountain La Concha, the emblem of the Costa del Sol, and some partial sea views from the rooftop solarium terraces.
Villa in the Los Plataneros street, El Rosario gated urbanization has total 1.010 m², Built 390 m² basement and 1st floor, plus additional terraces + solarium 300 m².
meer info